• ผลงานที่ผ่านมา
ร้านอาหาร โตไก (จำนวน 9 สาขา)
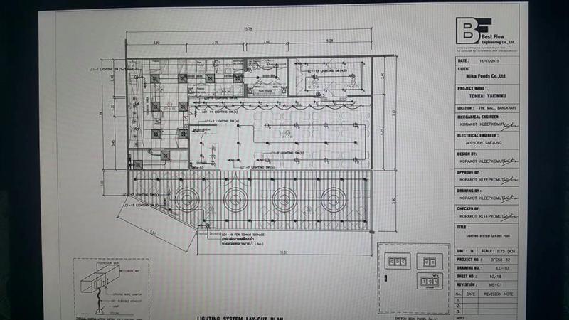
# งานออกแบบ + เขียนแบบ ระบบไฟฟ้า, ระบบโทรศัพท์, เน็ตเวิร์ค, ระบบเครื่องเสียง, ระบบกล้องวงจรปิด, ระบบปรับอากาศ, ระบบป้องกันดับเพลิง, ระบบสุขาภิบาล
# งานติดตั้งระบบไฟฟ้า
# งานติดตั้งระบบโทรศัพท์, เน็ตเวิร์ค# งานติดตั้งระบบเครื่องเสียง# งานติดตั้งระบบกล้องวงจรปิด# งานติดตั้งระบบปรับอากาศ# งานติดตั้งระบบป้องกันดับเพลิง# งานติดตั้งระบบสุขาภิบาล
Construction Site
1. ร้านโตไก สาขา เมกะ บางนา
2. ร้านโตไก สาขา พรอโต ชิโน่
3. ร้านโตไก สาขา เพลอนารี่ วัชระพล
4. ร้านโตไก สาขา แจ๊ส วังหิน
5. ร้านโตไก สาขา เดอะมอลล์ บางกระปิ
6. ร้านโตไก สาขา เซ็นทรัล แจ้งวัฒนะ
7. ร้านโตไก สาขา เดอะมอลล์ นครราชศรีมา
8. ร้านโตไก สาขา เทอมินอล 21 นครราชศรีมา
9. ร้านอูไม สาขา เซ็นทรัล มหาชัย


