หน้าแรก
ผลงานที่ผ่านมา
บริการ
ร่วมงานกับเรา
ติดต่อเรา
• ผลงานที่ผ่านมา
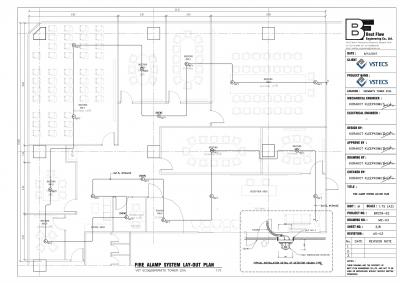
ออฟฟิส วี.เอส.ที. อาคาร เสริมมิตร ชั้น 22, 21
# งานออกแบบ + เขียนแบบ ระบบไฟฟ้า, ระบบกล้องวงจรปิด, ระบบปรับอากาศ, ระบบป้องกันดับเพลิง
# งานติดตั้งระบบไฟฟ้า
# งานติดตั้งระบบปรับอากาศ
# งานติดตั้งระบบป้องกันดับเพลิง
Page
1